Gepflegte Studentenwohnung in Bestlage von Mannheim (MA-Schwetzingerstadt)
Objekttyp: Mehrfamilienhaus
Kaufpreis: 160.000€
Gesamtwohnfläche: 450m²
Objekttyp: Mehrfamilienhaus
Kaufpreis: 160.000€
Gesamtwohnfläche: 450m²
Eckdaten
Objekttyp:
Mehrfamilienhaus (100%)
Adresse:
Augartenstr. 71, 68165 Mannheim
Baujahr:
1961
Anzahl Wohnungen:
10
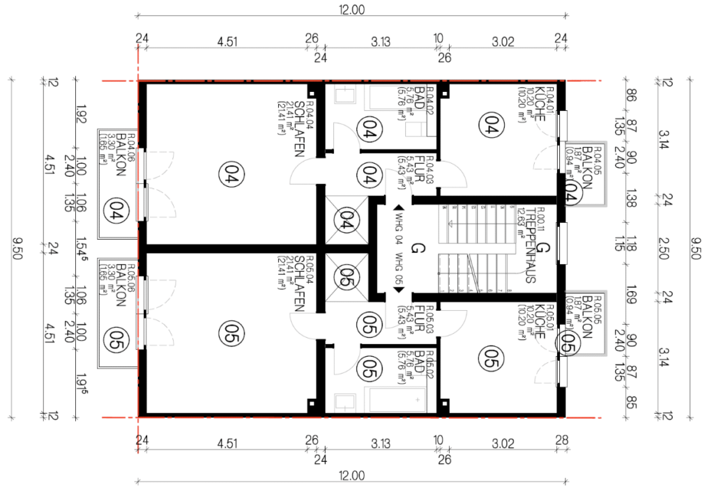
Wohnungsgrößen:
10x 45 m²
Gesamtwohnfläche:
450 m²
Balkone:
2 Balkone/Wohnung
Garagen:
Ja
Objektzustand:
Sehr gepflegt
Heizungsart:
Fernwärme
Modernisierungszustand:
Modernisierungs- zustand:
• Elektrik (2012)
• Fall- und Steigleitungen (2005-2012)
Kaufpreis/Wohnung:
160.000 €
Objektinformationen
Mehrfamilienhaus mit 10x ETWs & 2x Garagen in der beliebten Schwetzingervorstadt in Mannheim
Teilmöbliertes Apartmenthaus mit homogenen Wohnungsgrößen (10x 45 qm Einheiten) und jeweils 3x Balkonen
Energetisch solider Stand (Fernwärme Heizung; Energieeffizienzklasse D)
Sehr gute Vermietbarkeit der Einheiten aufgrund kompakter Wohnungsgrößen und optimalen Grundrissen, welche aufgrund des demografischen Wandels (steigende Haushaltszahlen) besonders nachgefragt sind.
Beginn der Vermarktung im Dezember 2023
Projekt vollständig abverkauft im März 2024
Marktkonformer Mietzins von 13,30 EUR/qm bzw. 600 EUR/Monat (Kaltmiete)
Weiteres Ausbaupotential aufgrund des nicht ausgebauten Dachgeschosses. Im Sommer 2024 beginnen die Aufstockungs- und ausbauarbeiten um zwei weitere Wohnungen zu realisieren. Titus nutzt das vorhandene Nahverdichtungspotential und schafft weiteren Wohnraum für Mannheim.
Energieausweis
Wohnung 2. OG
Wohnung 4. OG
Wohnung 1. OG
Wohnung 1. OG
Allgemeineigentum
Kostenloses Erstgespräch
Haben Sie Fragen oder benötigen Sie weitere Informationen? Zögern Sie nicht, uns zu kontaktieren – Wir freuen uns darauf, von Ihnen zu hören!